Klab Marignolle

01
02
Model
04.1
04
05
06
07
08
09
10
11
12
13
17
18
19
20
21

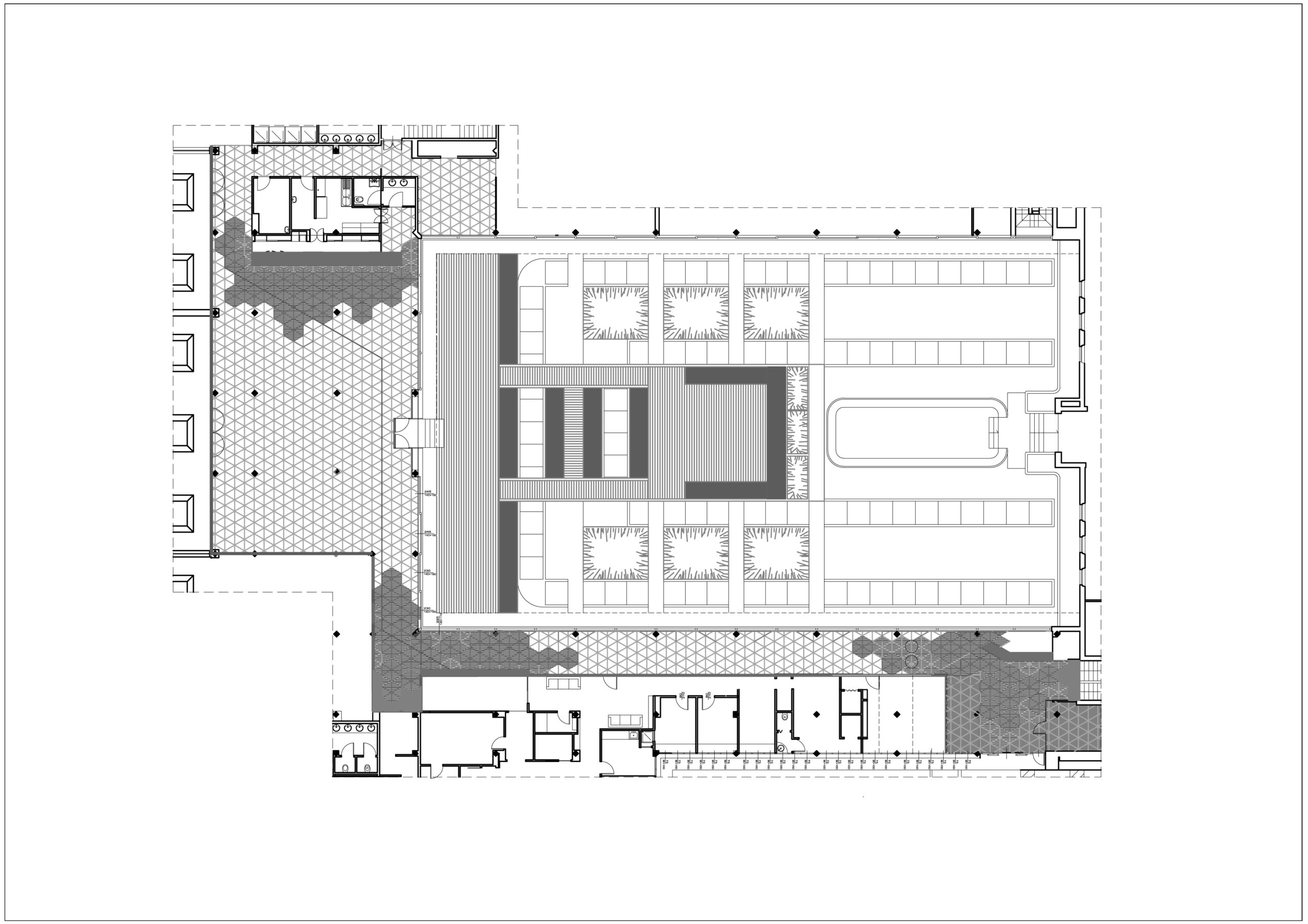
L’idea di ripensare l’ingresso di una palestra diventa l’occasione per giocare con le immagini, i materiali e le geometrie compositive. Una palestra è frequentata sempre da tante persone, molto diverse tra di loro, ma tutte concentrate sulla propria immagine, il proprio corpo, la propria forma fisica! In questo caso architettura e frequentatori dell’architettura parlano lo stesso linguaggio e sono complici del disegno, del progetto, dell’idea. Parlare con le immagini trasforma la possibilità di comunicare attraverso la sola parola e di accompagnare il visitatore in un percorso percettivo-visivo in totale armonia con il progetto.

Il progetto per il nuovo ingresso della Klab si concentra sulla possibilità di comunicare, attraverso l’architettura, l’energia e il movimento, la dinamicità e la sensazione di benessere: tutte qualità che vengono ricercate proprio da chi decide di frequentare una palestra. I materiali utilizzati e le immagini scelte rinnovano completamente l’immagine precedente giocando soprattutto con il colore verde e le sue sfumature, evocando i toni e le atmosfere predominanti dell’esterno essendo l’intero edificio della palestra immerso nella natura delle colline del paesaggio toscano.

Dati intervento / superficie 200 mq

Klab Marignolle

Klab Marignolle