Circolo ricreativo culturale

001
002
003
004
005
006
007
008
Model
0010
0011
0012
0013 (1)
0013 (2)
0013 (3)
0013
0014
0015
0016.0
0016.1
0016
0017.1
0017
0018
0019

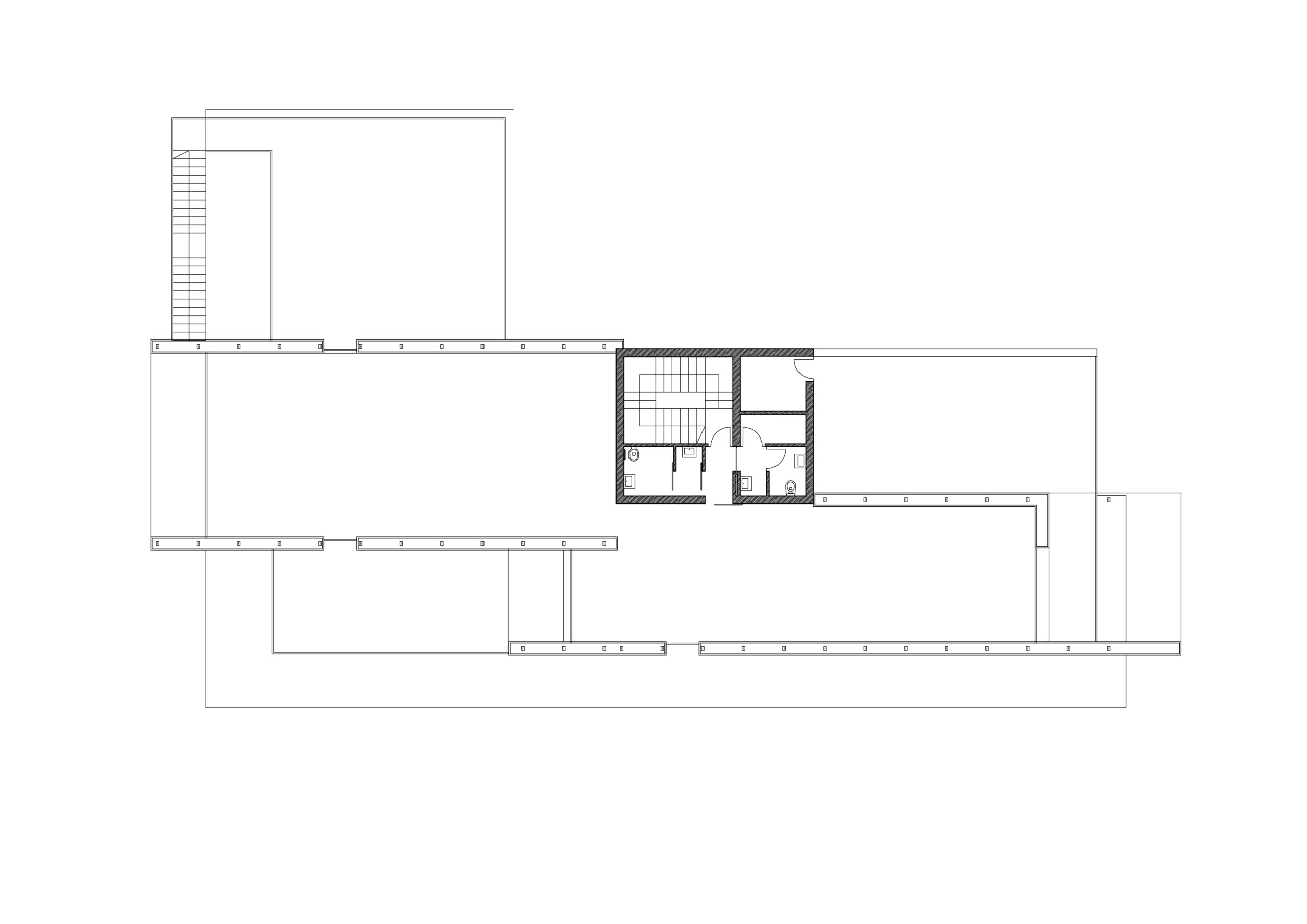
Una finestra esistente, aperta sulla piana, ha preceduto il progetto. Una finestra che è stata demolita perchè colpevole di appartenere ad una superfetazione che è stata dovuta sacrificare. E’ però la stessa finestra che è tornata ad essere nuova protagonista sotto forma di grande cannocchiale…anzi bi-cannocchiale perchè spalancata lo sguardo sul paese e sul paesaggio in direzioni diametralmente opposte: i due primi fuochi.

Un’architettura di demarcazione posta tra due estremità. Leggera sopra, pesante sotto. Afona sopra, piena sotto. Trasparente sopra, opaca sotto. Un’architettura tra cielo e terra: altri due fuochi. In tutto, quattro fuochi: sopra, sotto, destra , sinistra-davanti e dietro.

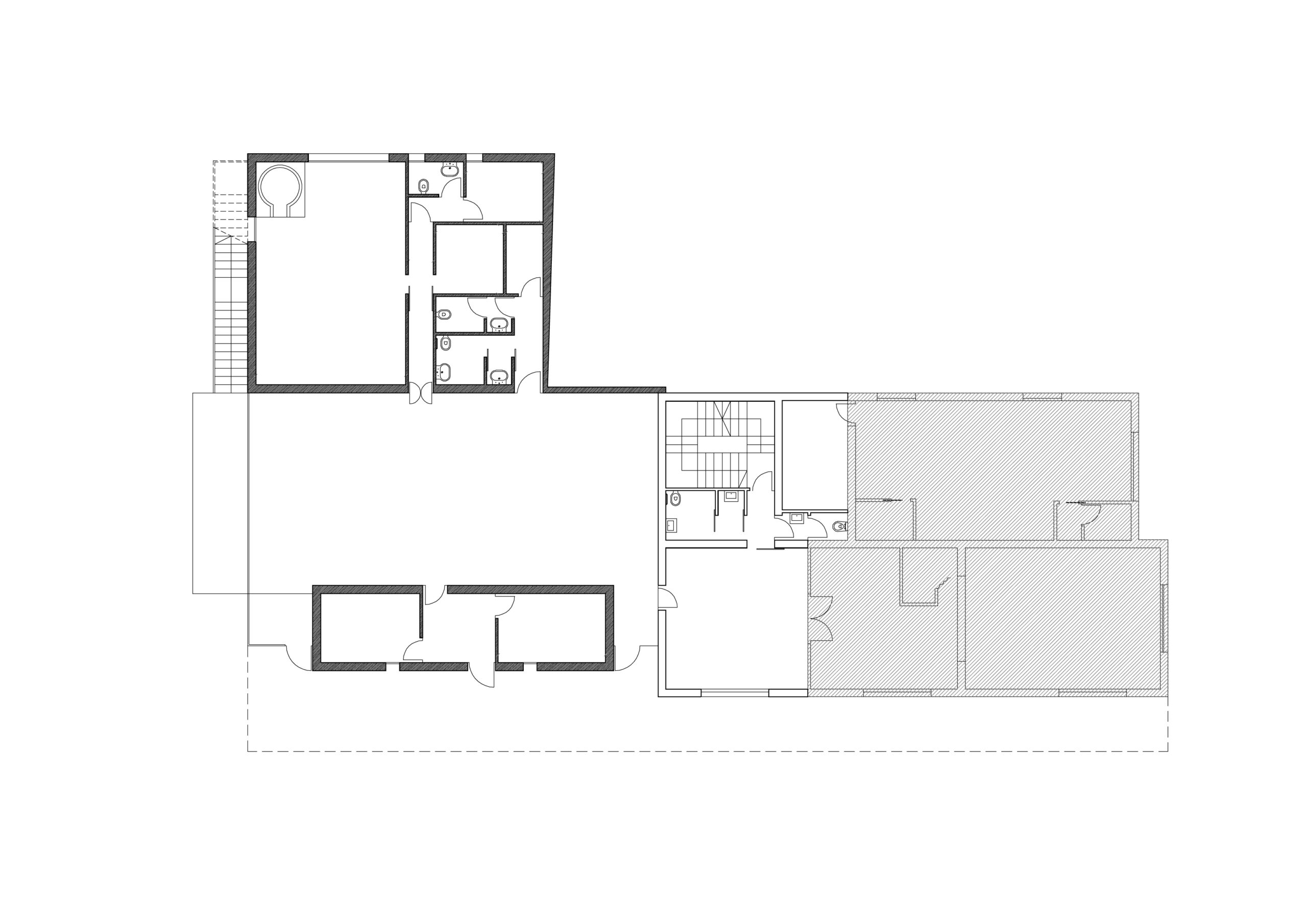
Il progetto per il Circolo Ricreativo di Castelnuovo si propone come luogo abitato dove convergono numerose esperienze legate alla vita dell’uomo: mangiare, giocare, ridere, parlare, ballare e guardare la televisione. Un’architettura capace di farsi attraversare da tutto ciò che riesce a catturare, da tutto ciò che il mondo fuori può proporre, da tutto ciò che il territorio ha da offrire.

Dati intervento / volume 1.305 mc, superficie 420 mq

Circolo ricreativo culturale

Circolo ricreativo culturale