Case Calamai

Immagini 019
002
Immagini 013
Immagini 020
Immagini 040
006
007
008
009
010
Immagini 035
Immagini 043
Immagini 007
Immagini 020
Immagini 072
Immagini 081
Immagini 065
Immagini 042
S/W Ver: 85.83.E7P

Il progetto intende affrontare una riflessione sulle dinamiche di trasformazione della città contemporanea promuovendo una linea culturale che indaga sui temi della stratificazione temporale, del meticcio urbano, dell’architettura come palinsesto.

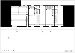
Il disegno del nuovo prospetto urbano rende esplicita la trasformazione avvenuta: una parete in cemento pigmento è scandita da una serie di tagli verticali a tutta altezza che consentono l’accesso a piccole corti interne di ingresso. Il riferimento principale sono le antiche mura della città di Prato: un grande muro abitato di cemento apparentemente impenetrabile che nasconde un mondo interno tutto da scoprire.

Questa architettura, come le mura, cela e difende una quotidianità legata al vivere domestico senza però renderla esclusiva e autoreferenziale: alla chiusura orizzontale verso l’esterno corrisponde una sorprendente permeabilità verticale. I tagli dei lucernari, l’ampia terrazza sui tetti e il rapporto ritrovato con il cielo garantiscono un ambiente domestico molto luminoso. La relazione con l’esterno è resa possibile attraverso le corti interne che consentono far penetrare luce e aria.

Tutto, l’architettura, lo spazio abitato, il volume pieno, viene attraversato e vissuto, viene disegnato e costruito attraverso la luce e la materia.

Dati intervento / lotto 300 mq, superficie 900 mq, volume 2113 mc

Case Calamai

Case Calamai